はじめに
久しぶりに部屋の配置替えを実施しました!
1辺が180cmある大きめのL字テーブルがあるのですが、これまではその大きいテーブルが6畳のお部屋を占拠しており動きづらい空間になっていました。
今回はL字テーブルの配置を変えた上で断捨離を行いつつ、HDMIやUSBの切替機を利用してモニターやデバイスがワンボタンで切り替えられるようにしました。
配置替え前後の設計図比較
一昨年の引っ越し時にLucid Chartでお部屋の設計図を書いていたので、その時のファイルを使い回して説明しやすいように書いておきます。
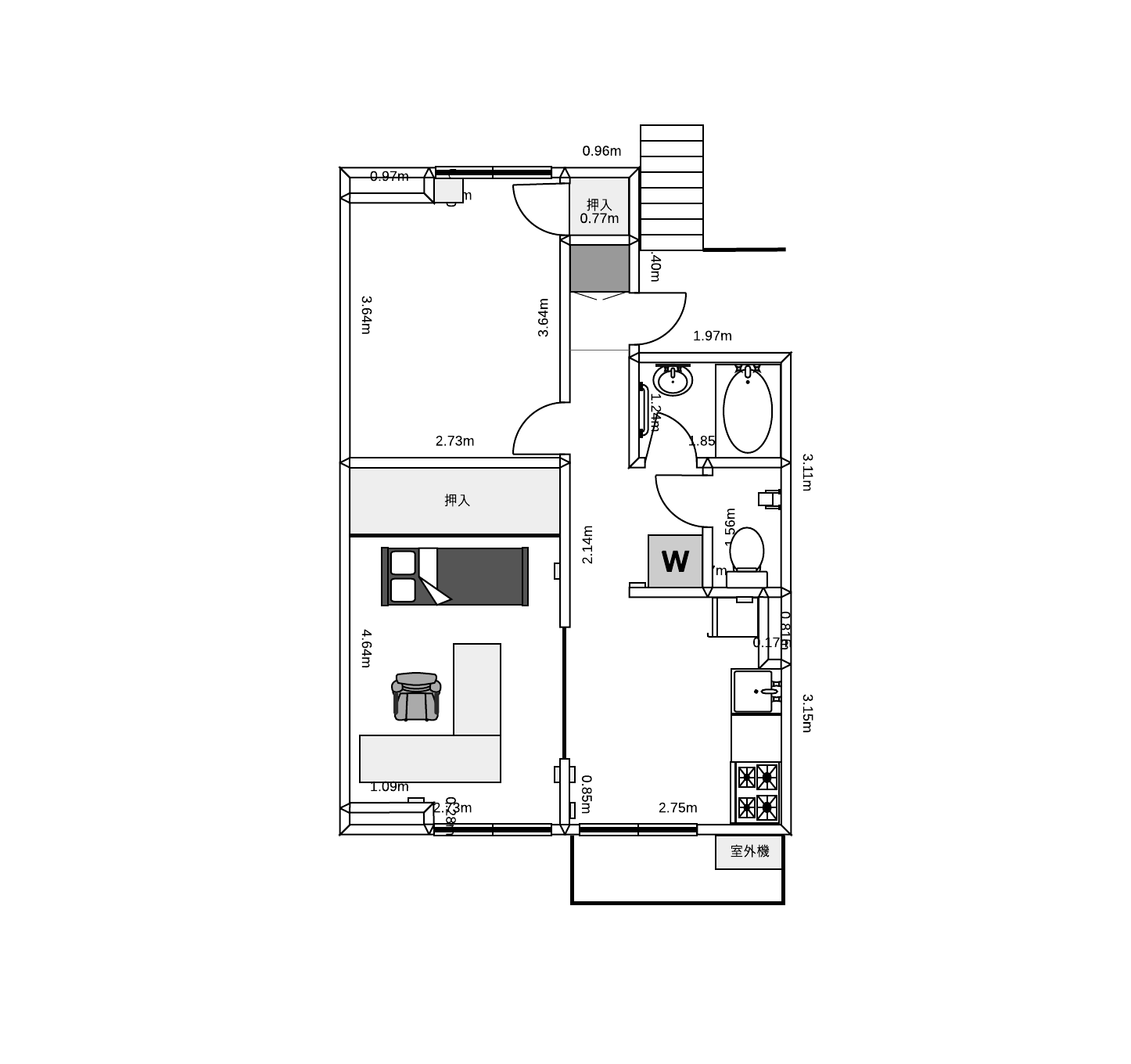
配置替え前の設計図

配置換えをしたのは配置替え前の設計図の左下6畳のお部屋になります
子供の頃からの変な癖なのですが、扉に背中を向けるのが割りと苦手でした
なので、お仕事中でもお部屋の扉が見えるようにデスクの配置をしていましたが、お部屋の中央にデスクのL字部分が占拠してしまっている状態でした😌
背中問題は解決しましたが、デスクからキッチンに向かうまでにもぐるっと回り込まないと行けなかったりデッドスペースが多かったりと若干の居心地の悪さはありました
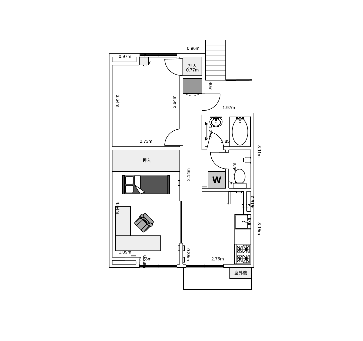
配置替え後の設計図

配置替え後の設計図の通りに配置換えを実施しました。
背中問題が発生することになりましたが、まぁお部屋を広く使えるなら...と妥協。
ついでに断捨離も実施して、45Lのゴミ袋2つ分くらいの大きさになりました
HDMI配線構成図
3台のPCを効率的に使い分けるため、ついでに以下のようなHDMI配線構成を設計しました。

構成内容:
- 業務用Mac PC: メイン作業用
- 業務用Windows PC: 案件用
- 個人用Windows PC: プライベート用途
- HDMI切り替え器: 3入力1出力の切り替え器で、ワンタッチでPCを切り替え可能
- モニター: 3台
この構成により、用途に応じて瞬時にPCを切り替えることができ、作業効率が大幅に向上しました
手元に切り替えボタンがあるのでストレスレスですし、何よりワンタッチで退勤後にプライベート作業できるのがとてもいい!
(USBもこんな感じで切り替えていますが割愛)
実際の配置替えの様子
配置替え後

L字テーブルの角ど真ん中にウルトラワイドモニターを配置し、角に体を向かせることで両肘をテーブルに置いて疲れづらくしました。楽!
ちょっと見づらいですが、左側のキーボードやマイクが置いてあるちょっと左横にHDMIやUSBの切り替え機があります。
左手をちょっと伸ばすだけで切り替えられます😊

L字テーブルの右隣に棚も設置しました
配置換えついでのホコリ掃除やデスクの移動めっちゃ大変だった...(彼女に大感謝)
暗い部屋での月のオブジェ

部屋を暗くした時の様子も撮影しました
月のオブジェが落ち着いた光でデスクの背後を照らし、チルにPCをさわれます(過剰に光ってるように見えますが実際は落ち着いてますよ)
まとめ
今回の配置替えにより、以下の改善を実現できました:
彼女に手伝ってもらわなきゃ2日はかかっていたね、ありがとうございます🙏
- L字テーブルの配置見直し: デッドスペースが少なくなりめっちゃ部屋が広くなりました
- 作業効率の向上: HDMIやUDBの切り替え機の設計見直しにより、PCの切り替えが瞬時に可能
- 配線の整理: ケーブル類が整理され、見た目もスッキリ
- 断捨離: 定期的な断捨離はとても気持ちがいいものです。
あとは布団周りなんとかしたいなー! 雑に敷いてるだけなのでいい方法を考える。